18
$1,199,900 Sale
Listed 11 hours ago
1905 35 Street NE
· 4
· 3.0
· 2
· 3384
Key Facts
Key facts for 1905 35 Street NE
Property Type
House, House
Parking
Garage: Yes, 2 parking
MLS #
10364921
Size
3384 sqft
Basement
Full
Listed on
-
Lot size
-
Tax
-
Days on Market
-
Year Built
2025
Maintenance Fee
-
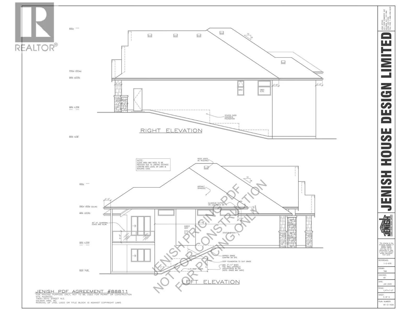
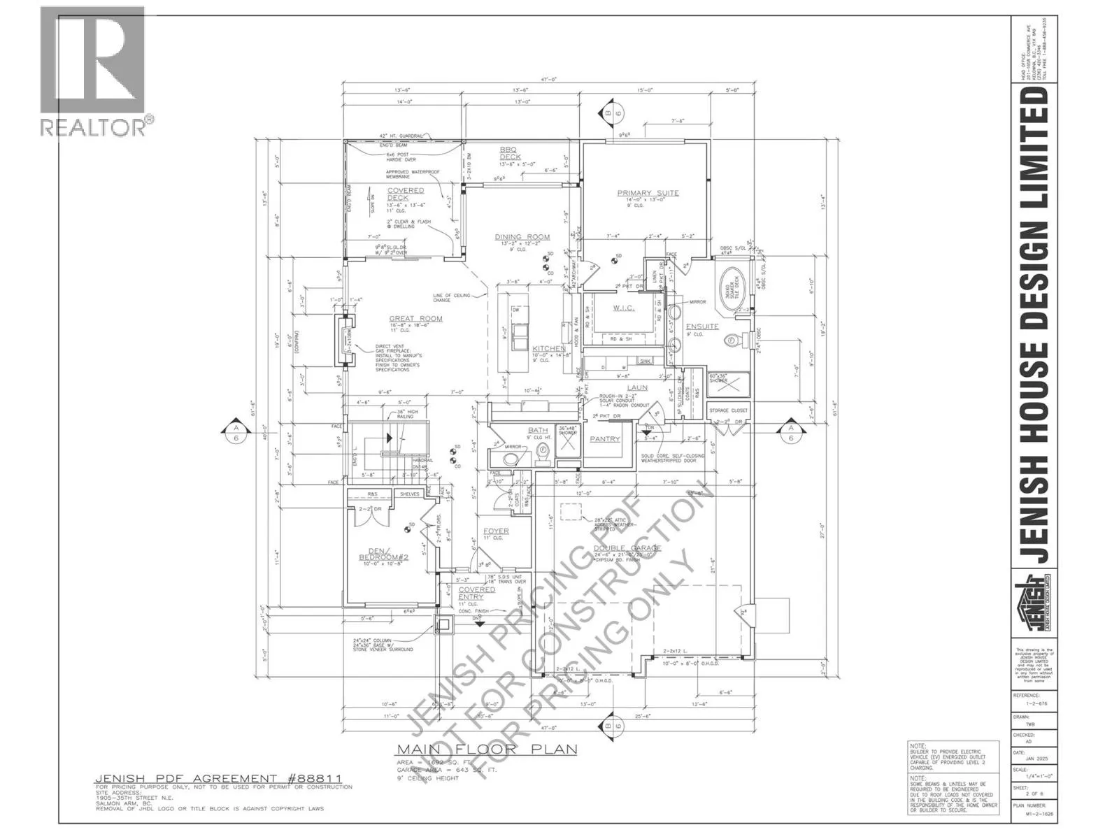
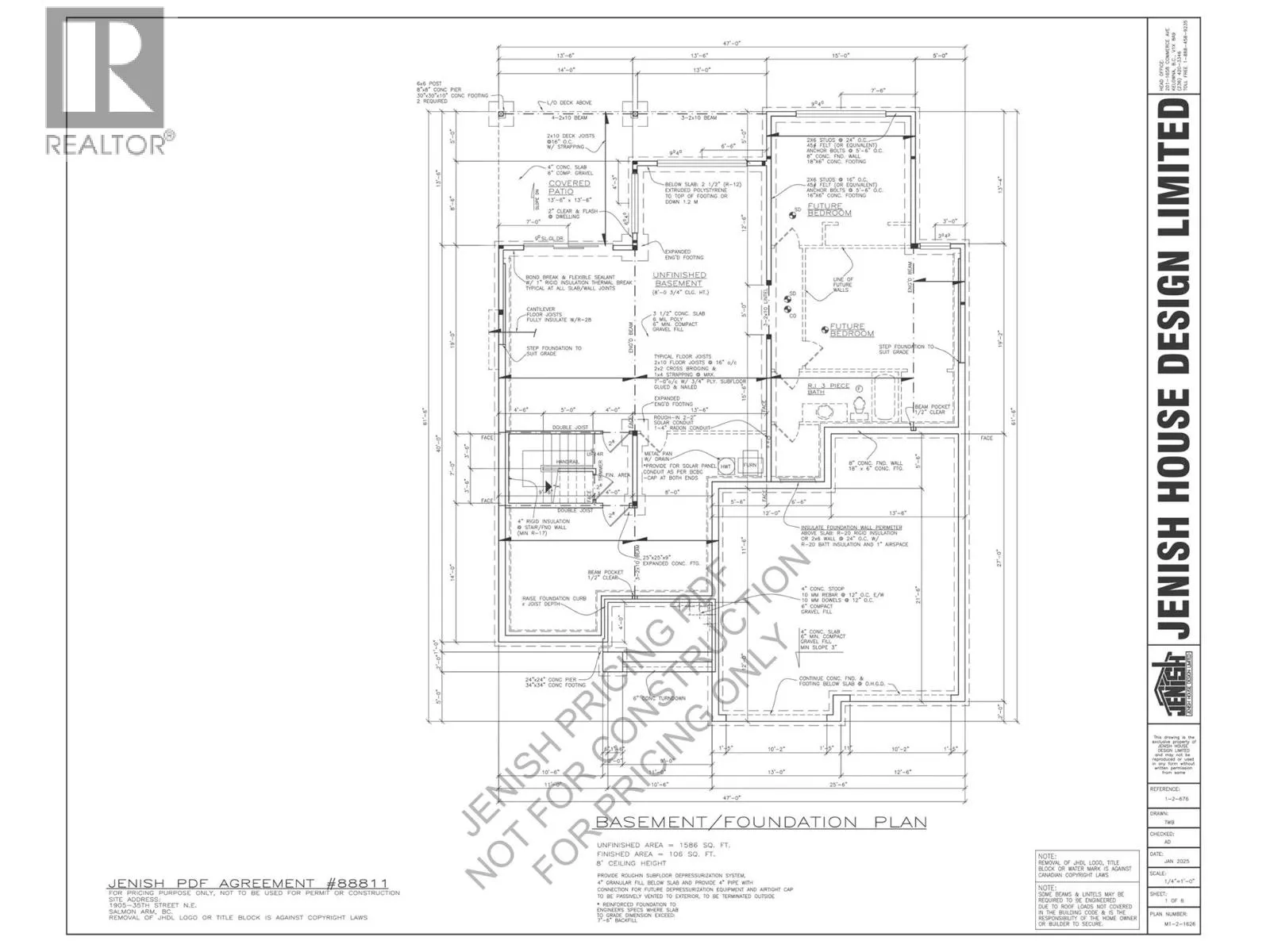
Description
This is your opportunity to own a new build in Salmon Arm's Lambs Hill Subdivision! Located in a quiet, family-friendly neighborhood, this brand-new 4-bedroom, 3-bathroom rancher with walk-out basement offers the perfect combination of luxury and convenience. With 3,400 sq ft of finished living spac...e on a 0.21-acre lot, this home features a bright, open concept layout with 11-foot ceilings in the living room and a large kitchen featuring a 9-foot island ideal for entertaining. Enjoy a 27-foot wide partially covered deck off the living room, perfect for outdoor dining or relaxing with mountain views. The walkout basement will be fully finished with 2 bedrooms and a bathroom, offering additional space for family or guests. Located just minutes from parks, schools, and grocery stores, this home is the perfect setting for modern living. (id:10452)
Similar Properties (No results)
Room Types
Bedroom
-
Dimensions 10'8'' x 10'0''
106.67 sqft
Bedroom
-
Dimensions 13'4'' x 15'0''
200 sqft
Bedroom
-
Dimensions 14'0'' x 15'0''
210 sqft
Listing courtesy of: Homelife Salmon Arm Realty.Com
This REALTOR.ca listing content is owned and licensed by REALTOR® members of The Canadian Real Estate Association.