44
$419,000 Sale
Listed 11 hours ago
199 Cliff View Drive
· 3
· 1.0
· 4
· 1404
Key Facts
Key facts for 199 Cliff View Drive
Property Type
House, House
Parking
Garage: No, 4 parking
MLS #
10364965
Size
1404 sqft
Basement
Crawl space, Cellar
Listed on
-
Lot size
-
Tax
-
Days on Market
-
Year Built
1913
Maintenance Fee
-
Description
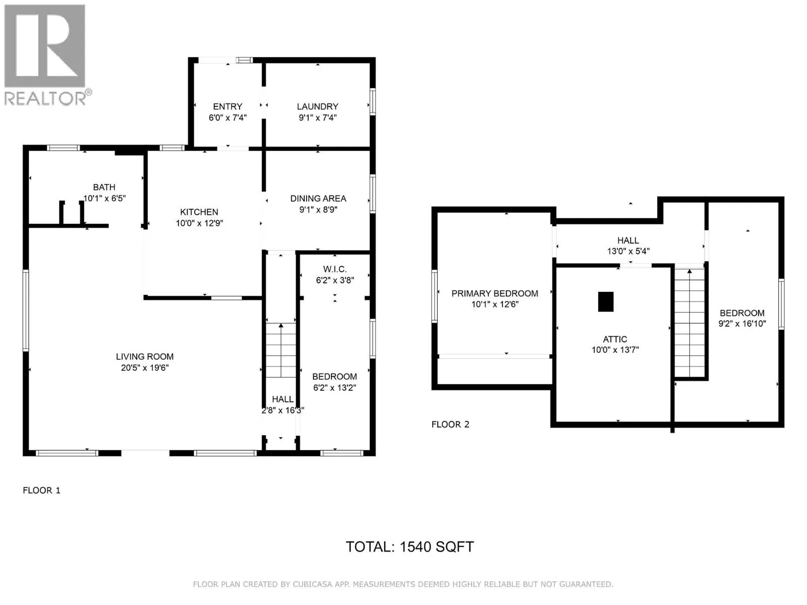
This character home built in 1913 has a beautiful front-gabled roof, a craftsman style common in early 20th-century homes and can be seen on neighboring homes (next door and across the road). In fact, these neighboring homes could offer inspiration on how this one could once again reflect charm and ...character, including expanding the living space in the attic. There's approximately 1,540 sq.ft. on two levels and the home welcomes you with a deep covered front porch, perfect for enjoying the mountain views and peaceful neighborhood setting. A standout feature of this home is the potential for added value—the level backyard offers space for a garage or workshop and the R3 supports a carriage house (subject to City approvals). Whether you're looking for a place to call home or a project with upside, this property presents an opportunity in a central Enderby location near schools, parks, and amenities. A true slice of local history, ready for its next chapter. (id:10452)
Similar Properties (No results)
Room Types
4pc Bathroom
-
Dimensions 6'5'' x 10'1''
64.7 sqft
Bedroom
-
Dimensions 13'2'' x 6'2''
81.19 sqft
Bedroom
-
Dimensions 15'10'' x 9'2''
145.14 sqft
Listing courtesy of: RE/MAX Vernon
This REALTOR.ca listing content is owned and licensed by REALTOR® members of The Canadian Real Estate Association.