2
$399,900 Sale
Listed 7 hours ago
11 Haleys Place
· 3
· 2.0
· 0
· 2460
Key Facts
Key facts for 11 Haleys Place
Property Type
House, House
Parking
Garage: No, 0 parking
MLS #
1292182
Size
2460 sqft
Basement
-
Listed on
-
Lot size
-
Tax
-
Days on Market
-
Year Built
2025
Maintenance Fee
-
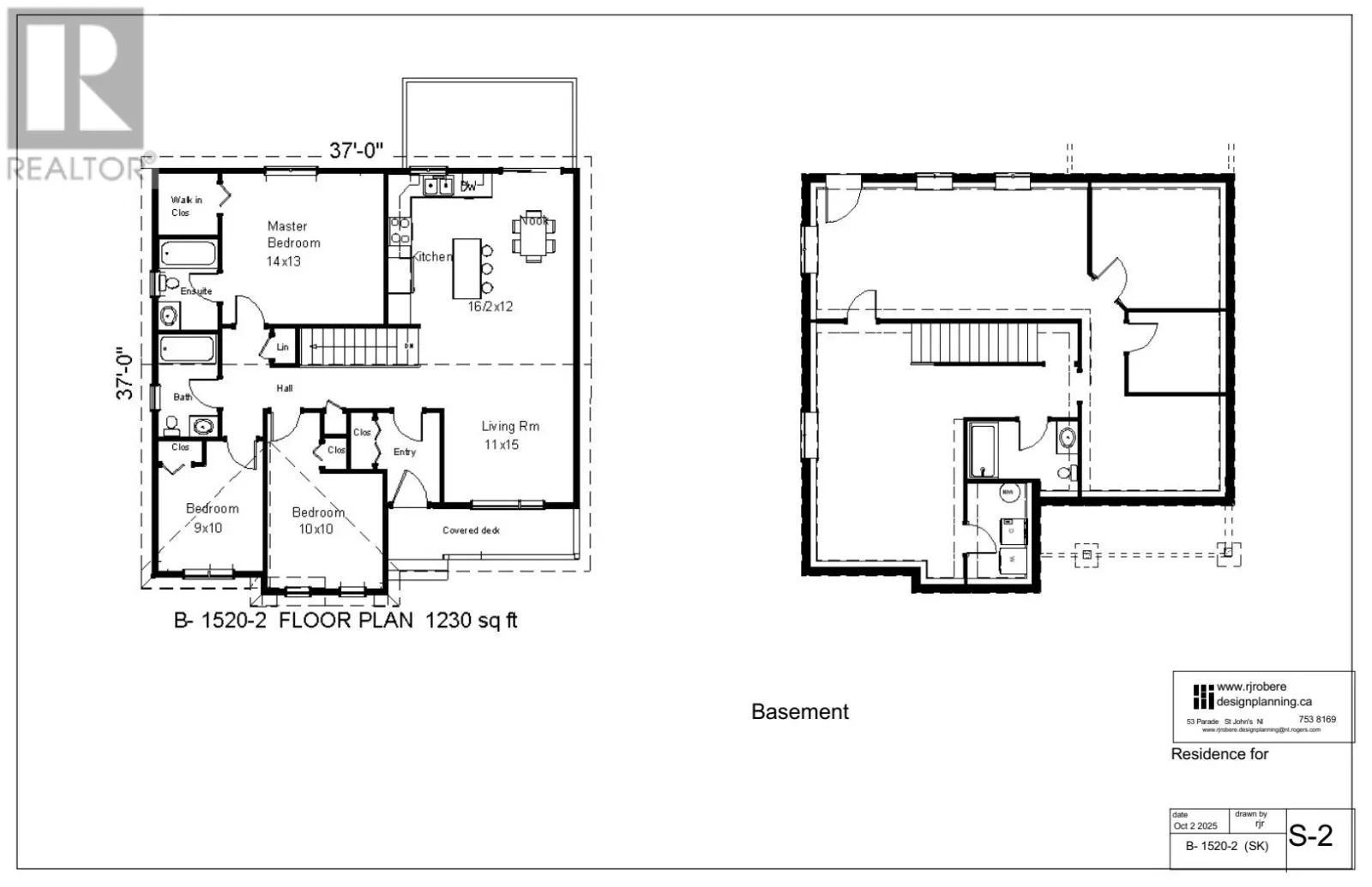
Description
Executive home on a cul-de-sac in picturesque Flatrock. Haley’s Place in Flatrock is home to several larger executive style homes. Over 1200 square foot developed residence will boast high end finishes throughout. This new build will be a high-end bungalow on a large lot. Features large eat-in kitch...en and living room on the main as well as 3 good sized bedrooms. Primary bedroom has an ensuite and walk in closet, and another full bathroom on the main. The undeveloped lower level presents a blank canvas for your future development—whether you're dreaming of a home theatre, gym, family room, bedroom, or extra storage. Flatrock is unquestionably one of the more scenic communities on the Avalon Peninsula. Only 15 minutes from St. John’s and the Stavanger Drive shopping and dining district. Come on, take a stroll along the Marine Drive and you will be impressed with the character and scenery of Flatrock. (id:10452)
Similar Properties (No results)
Room Types
Bath (# pieces 1-6)
-
Dimensions 4 pc x 4 pc
0 sqft
Bedroom
-
Dimensions 10 x 10
100 sqft
Bedroom
-
Dimensions 10 x 9
90 sqft
Listing courtesy of: RE/MAX Realty Specialists
This REALTOR.ca listing content is owned and licensed by REALTOR® members of The Canadian Real Estate Association.